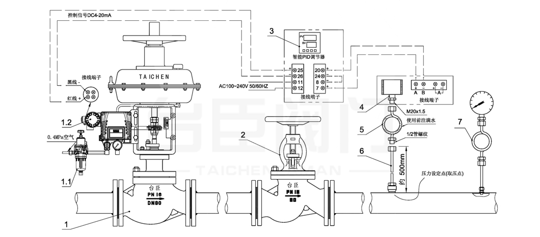
气动压力调节阀控制方案
ZXP-Y型分体式气动薄膜压力调节阀采用气动薄膜单座调节阀(或防爆型气动薄膜调节阀)、智能PID调节器+压力变送器及3芯屏蔽线等附件组成,具有高控制精度,*高可达+0.2%的控制精度,调节性能及控制精度远超过常规自力式压力调节阀。
该阀采用自反馈系统,通过压力变送器(4)采集被调介质压力的实时变化,经智能PID调节器(3)转换为DC4-20mA的标准控制信号来控制电动调节阀(1)的开启度,能直接对蒸汽、热气、热油等介质的压力实行自动PID调节和控制。

1.气动调节阀 1,1.过滤减压器 1,2.电气阀门定位器 2.手动截止阀 3.智能PID调节器 4.压力变送器 5.缓冲管 6.延长管 7.压力表组件
接线说明:
1、智能PID调节器(3)端子8与端子24短接;
2、智能PID调节器(3)端于20接压力变送器(3) B-;
3、智能PID调节器(3)端子7接压力变送器(3) A+; .
4、智能PID调节器(3)端子25和端子26接气动调节阀(1)的定位器(1.2)接线端子;
5、智能PID调节器(3)端子11和端子12接AC100-240V 50/60HZ电压:
6、空气过滤减压器(1.1)接0.4MPa清洁空气; .
7、延长管(6) 需现场配制,主要用于降低变送器工作温度。
注:①所有仪表在出厂前均已调试完成,在现场只需按图示接线完成即可正常工作,如现场控制值波动较大,请重新调试系统相关P、1. D值,即使用智能PID调节器(3)自整定功能,具体操作步骤参见NHR5000型智能PID调节器使用说明书(P17之7.3条) ;
②由于智能PID调节器(3)无防爆型,安装在要求防熳场合必须将智能PID调节器(3)置于防爆控制箱内或将其安装在非防爆区,且智能PID调节器(3)与调节阀(1)的控制信号线必须用屏蔽线(3芯、1.5平方)。
电动压力调节阀控制方案
ZAZP-Y型分体式电动压力调节阀采用电动单座调节阀( 或防爆型电动调节阀)、智能PID调节器+压力变送器及3芯屏蔽线等附件组成,具有高控制精度,*高可达+0.2%的控制精度,调节性能及控制精度远超过常规自力式压力调节阀。
该阀采用自反馈系统,通过压力变送器(4)采集被调介质压力的实时变化,经智能PID调节器(3)转换为DC4-20mA的标准控制信号来控制电动调节阀(1)的开启度,能直接对蒸汽、热气、热油等介质的压力实行自动PID调节和控制。

1.电动调节阀 2.手动截止阀 3.智能PID调节器 4.压力变送器 5.缓冲管 6.延长管 7. 压力表组件
接线说明:
1、智能PID调节器(3)端子8.与端子24短接;
2、智能PID调节器(3)端于20接压力变送器(3) B-;
3、智能PID调节器(3)端子7接压力变送器(3) A+; .
4、智能PID调节器(3)端子25和端子26接电动调节阀(1)的端子5和端子6 (注意正负极) ;5、智能PID调节器(3)端子11和端子12接AC100-240V 50/60HZ电压:
6、电动调节阀(1) 端子1和端子2接AC220V电压;
7、延长管(6) 需现场配制,主要用于降低变送器工作温度。
注:①所有仪表在出厂前均已调试完成,在现场只需按图示接线完成即可正常工作,如现场控制值波动较大,请重新调试系统相关P、1、 D值,即使用智能PID调节器(3)自整定功能,具体操作步骤参见NHR5000型智能PID调节器使用说明书(P17之7.3条) ;
②由于智能PID调节器(3)无防爆型,安装在要求防爆场合必须将智能PID调节器(3)置于防爆控制箱内或将其安装在非防爆区,且智能PID调节器(3)与调节阀(1)的控制信号线必须用屏蔽线(3芯、1.5平方) 。
17166341699