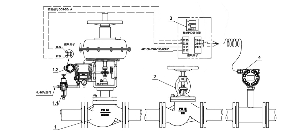
气动温度调节阀控制方案
ZXP-W型分体式气动薄膜温控阀采用气动薄膜单座调节阀(或防爆型气动薄膜调节阀)、智能PID调节器及PT-100温度传感器等附件组成,具有高控制精度(zui高可达到+0.2%的控制精度),调节性能及控制精度远超过常规型自力式温度调节阀。
该阀采用自反馈系统,PT-100传感器(4) 通过采集被调介质自身的实时温度变化,经智能PID调节器(3) 转换为DC4- 20mA的标准控制信号来控制气动薄膜调节阀(1)的开启度,从而能直接对蒸汽、热气、热油等介质的温度实行自动PID调节和控制,亦可使用在防止过热或热交换场合。

1.气动调节阀 1,1.过滤减压器 1,2.电气阀门定位器 2.手动截止阀 3.智能PID调节器 4.PT-100传感器 4,1.毛细管 4,2.传感器探头(测温点)
接线说明:
1、智能PID调节器(3)端子22、23、 24接传感器(4)的3个接线端子(注意端子颜色) ;
2、智能PID调节器(3)端子25和端子26接气动调节阀(1)的定位器(1.2)接线端子: .
3、智能PID调节 器(3)端子11和端子12接AC100~240V 50/60HZ电压;
4、空气过滤减压器(1.1)接0.4MPa清洁空气。
注:①所有仪表在出厂前均已调试完成,在现场只需按图示接线完成即可正常工作,如现场控制值波动较大,请重新调试系统相关P、I、D值,即使用智能PID调节器(3)自整定功能,具体操作步骤参见NHR5000型智能PID调节器使用说明书(P17之7.3条) ;
②由于智能PID调节器(3)无防爆型,安装在要求防爆场合必须将智能PID调节器(3)置于防爆控制箱内或将其安装在非防爆区,且智能PID调节器(3)与调节阀(1)的控制信号线必须用屏蔽线(3芯、1.5平方) 。
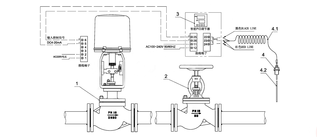
电动温度调节阀控制方案
ZAZP-W型分体式电动温控阀采用电动单座调节阀(或防爆型电动调节阀)、智能PID调节器及PT-100温度传感器等附件组成,具有高控制精度,*高可达+0.2%的控制精度,调节性能及控制精度远超过常规自力式温度调节阀。
该阀采用自反馈系统,PT-100传感器 (4) 通过采集被调介质自身的实时温度变化,经智能PID调节起(3)转换为DC4-20mA的标准控制信号来控制电动调节阀(1) 的开启度,从而能直接对蒸汽、热气、热油等介质的温度实行自动PID调节和控制,亦可使用在防止过热或热交换场合。

1.电动调节阀 2.手动截止阀 3.智能PID调节器 4.PT-100传感器 4,1.毛细管 4,2.传感器探头(测温点)
接线说明:
1、智能PID调节器(3)端子22、23、 24接传感器(4)的3个接线端子(注意端子颜色) ;
2、智能PID调节器(3)端子25和端子26接电动调节阀(1)的端子5和端子6(注意正负极);
3、智能PID调节器(3)端子11和端子12接AC100~240V 50/60HZ电压;
4、电动调节阀(1) 端子1和端子2接AC220V电压。
注:①所有仪表在出厂前均已调试完成,在现场只需按图示接线完成即可正常工作,如现场控制值波动较大,请重新调试系统相关P、1、D值,即使用智能PID调节器(3)自整定功能,具体操作步骤参见NHR5000型智能PID调节器使用说明书(P17之7.3条) ;
②由于智能PID调节器(3)无防爆型,安装在要求防爆场合必须将智能PID调节器(3)置于防爆控制箱内或将其安装在非防爆区,且智能PID调节器(3)与调节阀(1)的控制信号线必须用屏蔽线(3芯、1.5平方) 。
17166341699