气动流量调节阀控制方案
ZXP-L型分体式气动薄膜流量调节阀采用气动薄膜单座调节阀(或防爆型气动薄膜调节阀) +智能PID调节器+流量计及3芯屏蔽线等附件组成,具有高控制精度,*高可达+0.2%的控制精度,调节性能及控制精度远超过常规自力式流量调节阀。
该阀采用自反馈系统,通过流量计(4)采集被调介质流量的实时变化,经智能PID调节器转换为DC4 _20mA的标准控制信号来控制气动薄膜调节阀(1)的开启度,能直接对燕汽、热气、热油等介质的流量实行自动PID调节和控制。
1.气动调节阀 1,1.过滤减压器 1,2.电气阀门定位器 2.手动截止阀 3. 智能PID调节器 4.法兰式流量计
接线说明:
1、智能PID调节器(3)端子22、23、 24接流量计(4)的对应接线端子(注意端子颜色) ;2、智能PID调节器(3)端子25和端子26接气动调节阀(1)的定位器(1.2)接线端子:
3、智能PID调节器(3)端子11和端子12接AC100~240V 50/60HZ电压;
4、空气过滤减压器(1.1)接0.4MPa清洁空气。
注:①所有仪表在出厂前均已调试完成,在现场只需按图示接线完成即可正常工作,如现场控制值波动较大,请重新调试系統相关P、1. D值,即使用智能PID调节器(3)自整定功能,具体操作步骤参见NHR5000型智能PID调节器使用说明书(P17之7.3条) ;
②由于智能PID调节器(3)无防爆型,安装在要求防爆场合必须将智能PID调节器(3)置于防爆控制箱内或将其安装在非防爆区,且智能PID调节器(3)与调节阀(1)的控制信号线必须用屏蔽线(3芯、1.5平方) 。
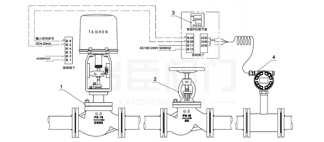
电动流量调节阀控制方案
ZAZP-L型分体式电动流量调节阀采用电动单座调节阀(或防爆型电动调节阀) +智能PID调节器+流量计及3芯屏蔽线等附件组成,具有高控制精度,*高可达+0.2%的控制精度,调节性能及控制精度远超过常规自力式流量调节阀。
该阀采用自反馈系统,通过流量计(4) 采集被调介质流量的实时变化,经智能PID调节器转换为DC4-20mA的标准控制信号来控制气动薄膜调节阀(1) 的开启度,能直接对燕汽、热气、热油等介质的流量实行自动PID调节和控制。

1.电动调节阀 2.手动截止阀 3.智能PID调节器 4.法兰式流量计
接线说明:
1、智能PID调节器(3)端子22、23、 24接流量计(4)的对应接线端子(注意端子颜色) ;2、智能PID调节器(3)端子25和端子26接电动调节阀(1)的端子5和端子6(注意正负极);3、智能PID调节器(3)端子11和端子12接AC100~240V 50/60HZ电压;
4、电动调节阀(1) 端子1和端子2接AC220V电压。.
注:①所有仪表在出厂前均已调试完成,在现场只需按图示接线完成即可正常工作,如现场控制值波动较大,请重新调试系統相关P、1. D值,即使用智能PID调节器(3)自整定功能,具体操作步骤参见NHR5000型智能PID调节器使用说明书(P17之7.3条) ;
②由于智能PID调节器(3)无防爆型,安装在要求防爆场合必须将智能PID谓节器(3)置于防爆控制箱内或将其安装在非防爆区,且智能PID调节器(3)与调节阀(1)的控制信号线必须用屏蔽线(3芯、1.5平方)。
17166341699